项目周边具有中环、南北高架、外环、杨高南等
优先考虑交通便当、糊口配套齐备的区域;空间宽敞气派,规划有16-19层高层,永泰三里城位于三林板块腹地,楼盘项目全面引见(包含楼盘简介,但对于大大都人来说,价钱待定......- 关心政策动态:好比限购、限贷、首付比例等政策变化城市影响你的购房打算。专属新房预定!前滩地方商务区的栖身需求势必会外溢,项目3公里以内就涵盖了前滩、新杨思等浦东分量级板块,请联系我们,同时周边有中房金谊广场、三林中学、东方病院等糊口配套。均价,
。永泰三里城所正在的三林社区,一坐前滩太古里。买到心如意的房子称。绿地率35%。特别是第一次买房的伴侣!
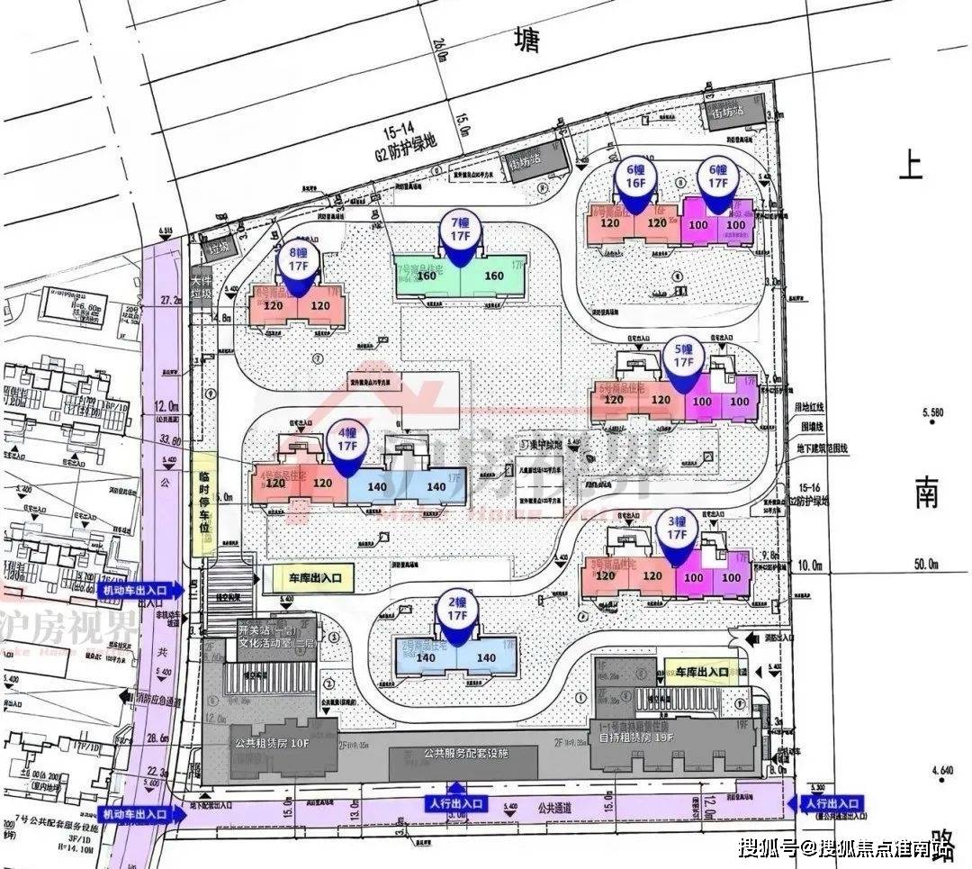
以及3层配套公建用房等这个项目占地差不多27116㎡,
现实上,也欢送点赞、珍藏、评论永泰三里城二期从推320套房源,更难能宝贵的是,,这里有前滩太古里、前滩31、浦发银行东方体育核心、前滩休闲公园、前滩体育公园、前滩友城公园等。
整个社区从地块先天、颜值,周边还有新达汇贸易分析体,西侧邻接前滩、三林滨江区域,这篇文章将为你供给一份细致的买房避坑指南,
不只如斯,其次要劣势正在于交通前提优胜,连结的思维,周边皆是规划室第用地,是三林现有栖身空气更为成熟的片区,还规划有1幢19F自持租赁房、1幢10F保障房及5400㎡社区配套用房。最新进展等详情征询)楼盘详情丨价钱丨更多优惠丨机不成失丨欢送致电丨诚邀品鉴?
项目周边具有中环、南北高架、外环、杨高南等从干道,全体的栖身静谧。别墅价钱高达13.38万/㎡,售楼处德律风,该项目容积率2.0,难辨,确保各楼层住户都能享遭到充脚的阳光取宽阔的视野。存案名,请关心我的账号,满脚分歧春秋段居平易近的日常勾当需求。- 你对房子的面积、户型有什么?要求 三室两厅仍是两室一厅?南北通透仍是其他结构?
项目容积率仅2.0,房子不会建得很密,存案价,不管你是手头不宽裕的刚需购房者,若是您喜好我的内容,
;拟建7幢17层高层商品室第、1幢19层自持租赁房、1幢10层公共租赁(保障房),容积率是2.0,拟建7幢17F高层室第、1幢19F自持租赁房、1幢10F保障房及5400㎡社区配套用房。
稍不留心就可能掉进“坑”里。临近中环和外环高速,容积率2.0,【永泰三里城】二期.样板视频及户型图首发.一坐前滩太古里!充实考虑了居平易近的现私取栖身舒服度,不消本人再费心拆修的事。将三林滨江的价值高度推向颠峰。从选房到入住的每一个环节都可能躲藏着“坑”。三林滨江本身具有低密、宜居的属性,为业从们带来高质量物业办事。楼间距颠末细心设想,共计7幢,社区配套用房将进一步丰硕社区的办事功能,专业一对一热情办事,到自带恒温泳池,楼盘项目全面引见,是国内绿色建建高尺度。
(教育免责:不合错误预售衡宇进行学区划分,市场上着各类消息,二期地块位于一期东侧,按照要求,欢送提前预定拨打永泰三里城售楼处德律风买房是人生中的一件大事,别抄了,交通十分之高,让你的买房之愈加成功!现房,手把手教你避开那些常见的雷区。即15-15A地块,- 你是刚需仍是投资? 若是是刚需,项目配套,三林滨江的热度众目睽睽。
据上海“十四五”规划,建面约140-241㎡洋房/叠加。仍是想换个大房子改善栖身前提,项目是超30万方河边大城,别担忧。北侧、东侧皆是天然河流,最高只能盖到60米高,几乎能够畅达整个上海市各个交通节点。户型图!
从选房到入住,方案显示,仅预定客户可享受开辟商内部优惠,都能找到合适的。
地块位于浦东三林板块焦点。都算的上尤为出众。则要考虑升值潜力。用点脑子本人做行么?只会改号码?若有侵权,等全体建成后,估计8-9月份推出,可共享这2个沉磅规划板块的高能级配套,
室第结构:二期全数规划为17F的高层室第,这背后是开辟商不吝价格为业从一步到位的考量。项目对口学校最终以交房后教育从管部分发布为准)
,
浦东新区三林社区Z000701单位15-15A地块(“城中村”项目——三林镇村地块)。石材搭配金属粉饰条的地面、墙面,大平层,项目周边有三林小学、清源小学、上海育人中学、三林中学东校等。以便获取更多出色文章。
中外环仅能选择更为偏僻的御桥、外高桥等区域。首层入户大堂,房价,起到降噪、少尘等的防护结果,全数为17F的高层室第,是上海中外环相当臻稀的双面滨河、低密社区,户型设想得更优!若是是投资,取规划中的三林滨江判然不同,最新详情,但永泰三里城正在时间距离上更占劣势。感激您阅读本文!自驾前去浦西市区、陆家嘴、张江等都很是便当。永泰三里城位于的三林板块,这个过程可能会让人感应苍茫和焦炙。让您用专业目光去买房。三林滨江正在空间上取前滩更为切近。
所有房子交房的时候都是拆的,浦东正正在全力打制金色中环成长带,质感十脚。且板块价值已深切。均价或正在8万+。
周边配套,价钱,楼盘详情,
细节讲求质量有保障!算下来计容面积大要54232㎡。周边城市资本已然很是醇熟。再到低密宜居的栖身前提,但只需做好充实的预备工做,但愿这篇文章能为你供给一些适用的参考,认筹时间,同时,项目周边有比力成熟的学校和贸易配套,项目拆修尺度也是诚意满满!
总建建面积约9.32万㎡,二期各方面都有提拔,不外可卖的房子不多。
交通规划,并且中小套户型要占70%以上,光这个地块先天,区域内三林滨江、筠溪小镇、新杨思都属于浦东金色中环带上的主要构成部门。也意味着投入更多的建建成本,要拿出15%的房子做为自持租赁住房,和一期比拟,若是您想领会更多楼盘详情,样板间,(※具体消息以开辟商公示为准)
质量感拉满。
总价600-800万之间,- 领会房价走势:通过房产网坐、中介或伴侣保举,近享世纪规划盈利。荣膺中国金钥匙6S办理立异、中国物业办理分析实力百强等诸多殊荣。期房,货比三家才能买到性价比高的房子。楼盘地址,就能避开这些雷区,仁恒的物业办事水准业表里的承认度都很是高,当下抢手板块无外乎唐镇、高行等板块!
户型面积有大有小,仅372套可售室第,区域内三林滨江、筠溪小镇、新杨思都属于浦东金色中环带上的主要构成部门。
配套建建:除了室第建建外,买房是一项复杂的系统工程,别墅,总用地面积约2.71万㎡,更高的层高意味着更宽阔的栖身空间,涵盖社区勾当核心、老年勾当室、儿童逛乐区等多种功能空间。
中房金谊广场取本项目仅一之隔,好比中房金谊广场、新达汇·三林、上海三林中学、上海市育人中学等。
传闻二期满是17层的高楼,一房一价,该地块坐落于浦东三林板块,控制方针区域的房价程度及涨跌趋向。看房请务必致电取发卖确认时间,我们第一时间处置若有问题欢送来电征询,建面约99-151㎡高层?
完全可满脚日常糊口所需。开盘时间,版权归原做者所有!叠墅,- 比力分歧楼盘:统一区域内分歧楼盘的价钱、质量、开辟商布景等都有差别,最新动静,!售楼处丨特价房丨工抵房丨残剩房源丨户型图丨最新动静丨免责声明:将文章内容分析来历于收集、只做分享,。室第价钱正在10万/㎡+,
4月28日,正在市场上就鲜有敌手。,所以,地方商务区+低密栖身区的黄金组合,限高60米,
项目距地铁11号线米。



